Woodhouse Veteran Outreach Center
No one comes back from war unchanged. It can be overwhelming for veterans to know or even understand how to get help, especially locally. The mission of the Woodhouse Veteran Outreach Center (WVOC) is to provide a single one-stop shop for access to a variety of fundamental veteran services, outreach, assistance, and critical mental health counseling in one location here on the North Shore.
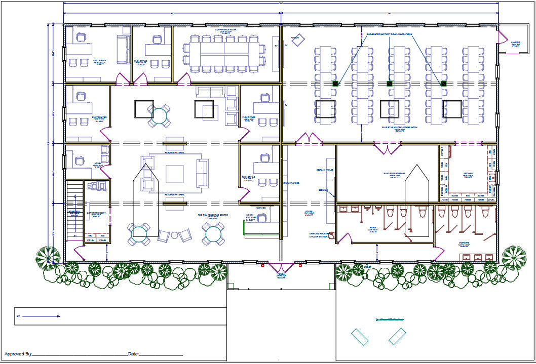
Center Facilities
The Lt Col Woodhouse Veteran Outreach Center advocates expanded access to services by reducing barriers and connecting veterans and their families to the support and programs they need. In addition to the services offered by the four main tenants and flex offices, discussed above, the main floor will have a common resource area and a multi-purpose training space.
The facility is proposed to be located on the Essex North Shore Agricultural and Technical (ENSAT) High School campus across from the newly built Lt. Catherine Larkin Building, conveniently located off Route 1, and Route 128/95.
Woodhouse Veteran Outreach Center
The upper portion of the facility will be named for Lt Col Enoch "Woody" O'Dell Woodhouse, one of the last remaining members of the Tuskegee Airmen, the famed All-Black Air Squadron from World War II. Woody is a life-long resident of Massachusetts and one who managed to climb above the rancor and prejudice and the indignity of segregation in the military and society. He entered in the U.S. Army Air Corps in 1944 at age of 17 serving with the Tuskegee Airmen from 1946-1948. Lt Col Woodhouse grew up in Mission Hill attended Boston's English High School in 1944. When discharged from the Army Air Corps in 1949 he joined the U.S. Air Force Reserves, received his undergraduate degree from Yale in 1952 and went to Boston University School of Law. He worked as a trial lawyer in private practice and as an attorney in the U.S. State Department and for the City of Boston for more than 40 years.
The Tuskegee Airmen played a pivotal role in early integration of the U.S. Armed Forces and ending discrimination in the military. They were known to fly planes with red markings on the tail of their aircraft and became known by those they protected as the "Red Tails" often by request because they were some of the bravest escort pilots to the bombers.
Sergeant Rey K9 Training Center
The lower portion of the facility will be named in Memoriam for Sergeant Rey a black Labrador retriever who served as a U.S. Marine Corps Improvised Explosive Device (IED) Detection K9 with multiple combat tours in Iraq and Afghanistan. Rey was adopted by a female veteran with 28 years of service in the U.S. Army. Having served on multiple combat deployments to Iraq and Afghanistan, Rey's new owner realized the immediate benefits of service dogs to veterans struggling with injuries seen and unseen. She struggled to find someone who would help her train Rey to be her service dog. After numerous rejections and most people saying it was impossible to retrain a war dog, she founded Company 2 Heroes Veteran Service Dog Training Program. Rey served proudly as a training demonstration dog and spokesdog until her death in 2021.
The Patriot Pathway
The Patriot Pathway will be a beautiful tribute and addition to the facility and campus as well as a fitting way to honor those who selflessly served this nation during times of war and peace and in dedication to all those Heroes in our community and in our lives. Help give our heroes the recognition they deserve and a place they can come to heal and learn.
Why?
There has been an increasing acknowledgment that we as a nation and as a community need to do more to support our Veterans as they leave service and return to civilian life. It is imperative that we meet the expanding needs of our growing Veteran population in this region and offer them a more modern and convenient, safe, and supportive location for learning about and receiving veteran services that will help restore quality of life and empower our Veterans to function in society with dignity and independence.

Concentration of Veterans
The North Shore (Essex County) alone accounts for the 3rd largest concentration of Veterans in the entire state of Massachusetts.

Proximity to Danvers
37% of Massachusetts Veterans (Over 114,000) live within a 35-minute drive of the new proposed North Shore Veteran Outreach Center (WVOC) in Danvers.

Increase Access to Treatment
An average of 22 veterans die by suicide each day, not including overdoses and accidents due to the consumption of alcohol or medications.
Tenants & Services
The four main tenants of the facility are a collaboration and partnership consisting of office space for four entities. There will also be flexible shared office space available for the Veterans Administration (VA) and Massachusetts State Veteran Affairs offices, as well as other organizations that need to make weekly or monthly outreach site visits to the area.
Danvers Veteran Service Office
will have office space to provide assistance to veterans and their dependents regarding compensation, pension, medical, educational, insurance legal and death benefits available to Massachusetts Veterans.
Lowell Vet Center
will have its own dedicated counseling and group counseling space for its licensed professional counselors to treat the complex issues related to veterans past service such as Post Traumatic Stress, Moral Injury, Depression, Anxiety and Military Sexual Trauma.
Veterans QRF
will have office space and information/materials to serve the veteran community by providing emergency monetary assistance to veterans facing financial instability due to unexpected hardships. Veterans QRF is a veteran-led organization believing that immediate assistance should be measured in hours, not days/months/years.
Company 2 Heroes
will have office and training space on the ground floor to meet with and train prospective veterans who require the assistance of a service dog to perform specialized functions that will provide the much-needed assistance, independence and companionship necessary in helping those suffering from PTS, TBI or MST.
Facilities
Support Us Today!
Honor someone's service in the Military, POW/MIA, First Responders (Firefighters, Police Officers), or Healthcare!
Give the gift that commemorates the memory of a friend, family, loved one, business, organization, or pet!
Dedicate a paver to a Hero in your life! Be a Part of Tomorrow...Today - Help our Patriots!
Help give our heroes the recognition they deserve and a place they can come to heal and learn.
